Przedszkole Na górkach
rok: 2018
klient: inwestor prywatny
lokalizacja: Tczew
kategoria:
Projektowanie wnętrz dla dzieci | żłobki, przedszkola & szkoły
zakres opracowania: projekt koncepcyjny + wykonawczy + identyfikacja | współpraca Karolina Golec-Niewęgłoska
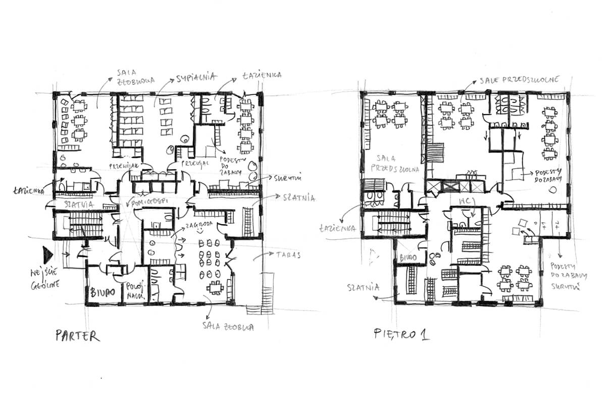
Przedszkole i żłobek zawiera 8 sal na dwóch kondygnacjach oraz w pełni funkcjonalną kuchnię w piwnicy wyposażoną w windę towarową.
Każda z sal dla dzieci oscyluje w granicy od 60-70 m2, co umożliwia łącznie przyjęcie do 200 dzieci. Głównym założeniem projektu wnętrza tego przedszkola była redukcja bodźców wzrokowych generowanych poprzez architekturę wnętrza.




Aby uniknąć potencjalnego przebodźcowania dzieci przebywających często w zbyt barwnych, krzykliwych przestrzeniach, w tym przedszkolu wnętrza utrzymane zostały w stonowanej kolorystyce, począwszy od bieli, poprzez szarości, aż do ciemnych grafitów, ocieplonych dużą ilością naturalnego drewna.
Jego obecność w postaci sklejki iglastej, pełnej licznych sęków i wyraźnych słojów, dodaje wnętrzu naturalności i ciepła. Brak tu jakichkolwiek dodatkowych, obcych barw. Architektura wnętrza jest wyłącznie dyskretnym tłem, na którym rozgrywać się będą codzienne zabawy i aktywności dzieci, wprowadzając do niego liczne kolory i dynamiczne akcenty.
Z wyjątkową pieczołowitością dopracowane zostały nietypowe zabudowy stolarskie służące do przechowywania dziecięcych skarbów – wszelkie szafy, półki i schowki zostały zaprojektowane według szczegółowych, inwestorskich wytycznych funkcjonalnych.
Szkice koncepcyjne
Zaufali nam



















