Przedszkole Mega Mocni Chełm
rok: 2015
klient: Inwestor prywatny
lokalizacja: Gdańsk
kategoria:
Projektowanie wnętrz dla dzieci | żłobki, przedszkola & szkoły
zakres opracowania: Projekt koncepcyjny + wykonawczy + identyfikacja | współpraca Karolina Golec-Niewęgłoska
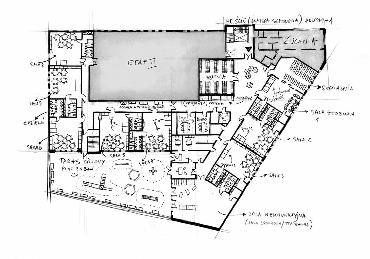
Przedszkole zlokalizowane jest na drugim poziomie wielkopowierzchniowego centrum handlowego w Gdańsku Chełmie. W jego strukturze znajduje się 9 sal przedszkolnych oraz sala wielofunkcyjna. Umożliwia to przyjęcie do 237 dzieci.
Projekt wnętrza zakładał stworzenie inspirującej przestrzeni, odnoszącej się w abstrakcyjny sposób do naukowego profilu placówki, wykorzystując w tym celu charakterystyczne motywy graficzne i ilustracje.




Kolorystyka wnętrza sprowadzona została wyłącznie do bieli, głębokiego błękitu i czerwonych akcentów, ocieplonych dużą ilością drewna. Sześcioboczne motywy, będące wynikiem inspiracji wzorami chemicznymi, posłużyły do stworzenia funkcjonalnych elementów wyposażenia wnętrza.
Charakterystycznymi miejscami w salach dla dzieci są czerwone domki do zabawy, wyposażone w materace, ścianę tablicową oraz drabinki. W projekcie przedszkola kluczowa była identyfikacja wizualna wnętrza, która tworzy interesujący efekt graficzny, ale przede wszystkim ułatwia poruszanie się po przedszkolu.
Wnętrze posiada dziecięcy charakter, choć pozbawione jest infantylnych i banalnych motywów dziecięcych.



















