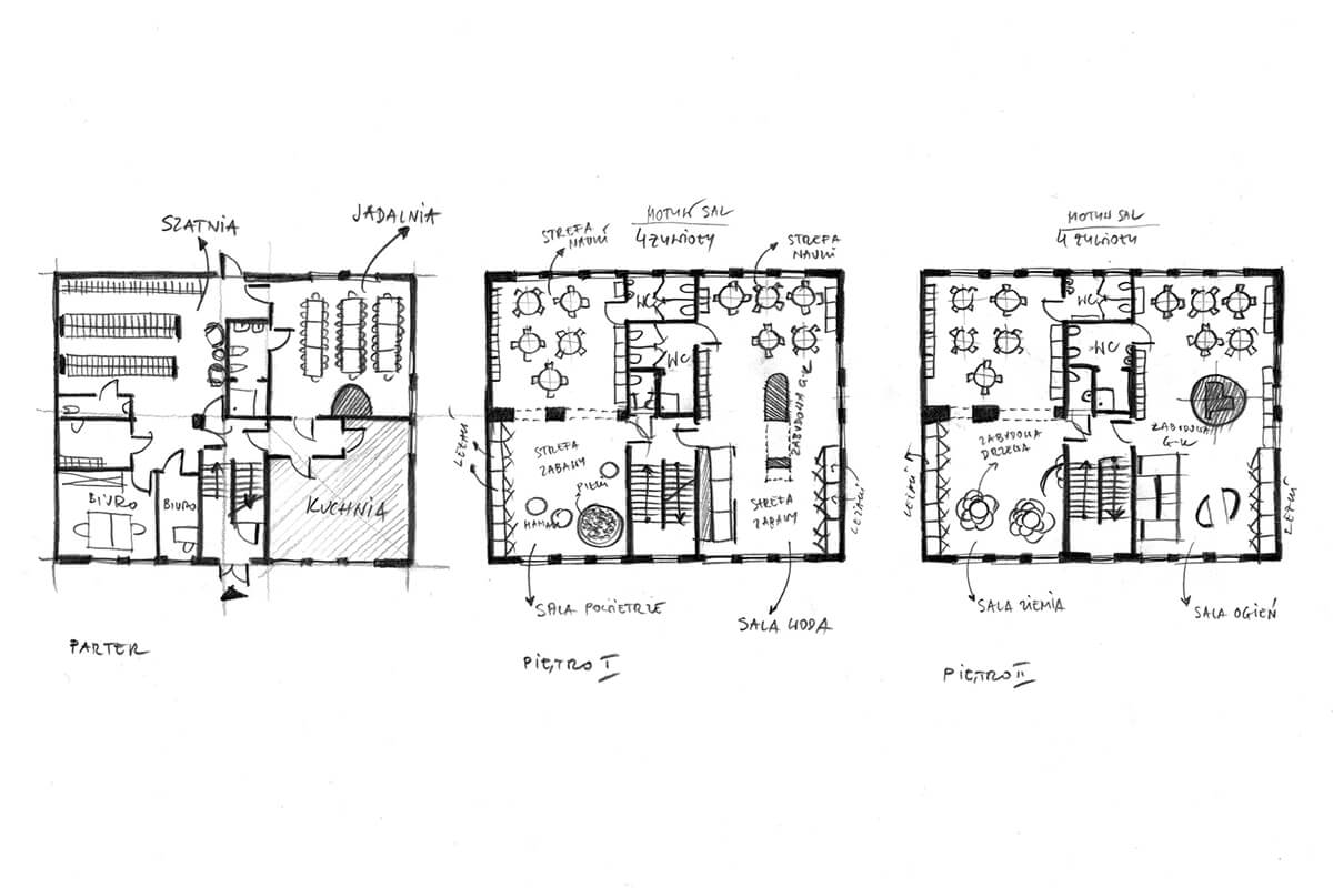
Przedszkole Kuźnia Talentów
rok: 2018
klient: inwestor prywatny
lokalizacja: Włocławek
kategoria:
Projektowanie wnętrz dla dzieci | żłobki, przedszkola & szkoły
zakres opracowania: projekt koncepcyjny + wykonawczy + identyfikacja


Wizualizacje
Zaufali nam



















